Welcome to Iseman Homes
Gillette Branch
307-682-0201
Iseman Logo
Slide background
Click for Slideshow

 

Gillette - Willow
Details
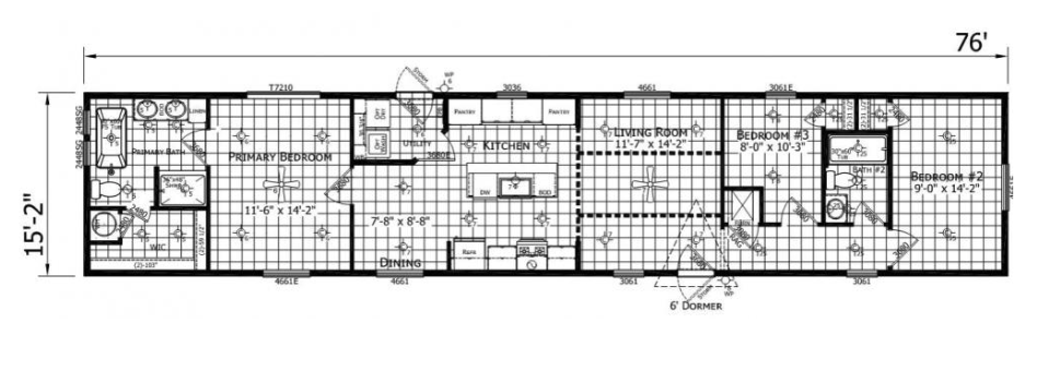
Make: Highland   Model: Willow
Bedrooms: 3   Size: 16 X 80
Bathrooms: 2   Year: 2026
      Sqr ft: 1180

The Willow is a 3 bed, 2 bath single-section home orderable to Gillette, WY that’s getting a lot of attention. This unique layout features an eye-catching kitchen that flows right into the living room, complete with ceiling beams that add a standout touch. The spacious primary suite is a highlight, offering dual vanities, a soaker tub, walk-in shower, and a large walk-in closet. Available to order at our Gillette, WY location! Call 307-682-0201 for more information!

* Ask our sales team about financing options.

Request more information about this model

* Please provide your first name.
* Please provide your last name.
* A value is required. Invalid format.
* Please provide your phone number.
* Please provide your expected down payment.
* Please select when you plan to buy.
* Please provide where your home will be located

No referrer


v8/28-2

Business Hours

MONDAY 9:00 am - 6:00 pm
TUESDAY 9:00 am - 6:00 pm
WEDNESDAY 9:00 am - 6:00 pm
THURSDAY 9:00 am - 6:00 pm
FRIDAY 9:00 am - 5:30 pm
SATURDAY 9:00 am - 4:00 pm
SUNDAY Closed

Iseman Homes has many locations to serve you.

Map of our locations

ß

Iseman Homes is one of the nation’s leaders in manufactured home sales with offices in seven states. Founded in 1920, Iseman was an industry pioneer in bringing the benefits of manufactured homes to market. For more information please navigate to your nearest Iseman Sales Center, or email us now!